PRIEŽU MĀJA

Priežu čiekuri katru gadu...
Priežu čiekuri katru gadu desmitu...
Priežu čiekuri katru gadu simtu...
Priežu čiekuri katru gadu tūkstoti...

NSRD “Kuncendorfs un Osendovskis”
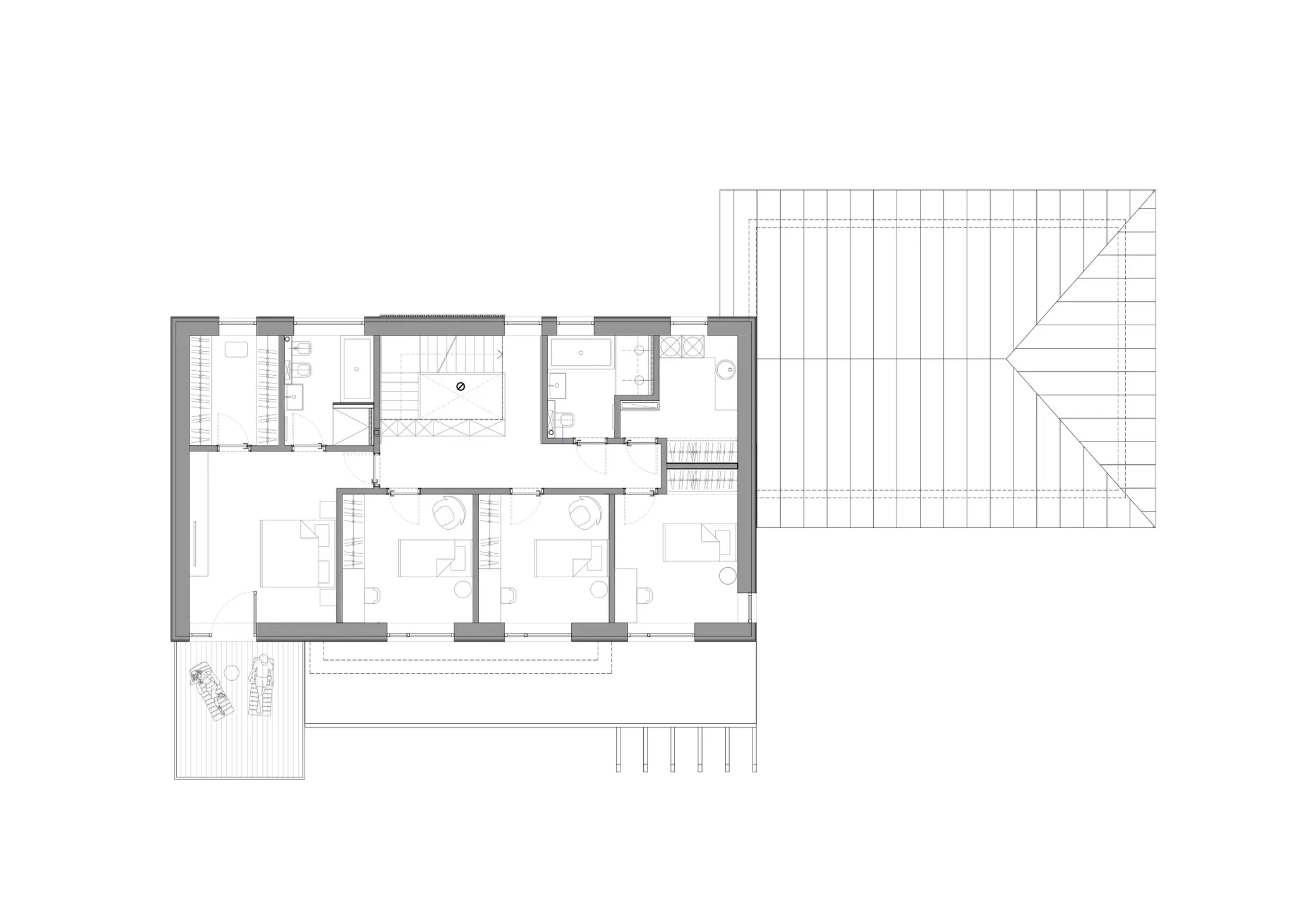
Privātmājas jaunbūve Garupē
2024. | N.Saulespurēna, K.Prancāne foto: S.Seržante​