JAUNBŪVES
DIENVIDU MĀJA
KLUSĀ MĀJA
UPES MĀJA
PRIEŽU MĀJA
OGU MĀJA
ARĀJU MĀJA
ZĪĻU MĀJA
ZIEMEĻU MĀJA
BAGĀTNIEKU MĀJA
BRŪKLEŅU MĀJA
MEŽMALAS MĀJA
DĪĶA MĀJA
CEĻMALAS MĀJA
SLĒPTĀ MĀJA
UPEŅU MĀJA
PĀRBŪVES
VIENĪBAS MĀJA
VĀVERU MĀJA
VENČU MĀJA
TAUREŅU MĀJA
ZĪLĪŠU MĀJA
LIEPNAS ESTRĀDE
LIELBŪVES
BIŠU NAMI
ZUNDA NAMI
TĒRBATAS NAMS
GARAIS NAMS
MARIJAS VIESNĪCA
KVĒLES NAMS
KOMANDA
KONTAKTI
Latviešu
Latviešu
English
Izvēlne
/
JAUNBŪVES
/
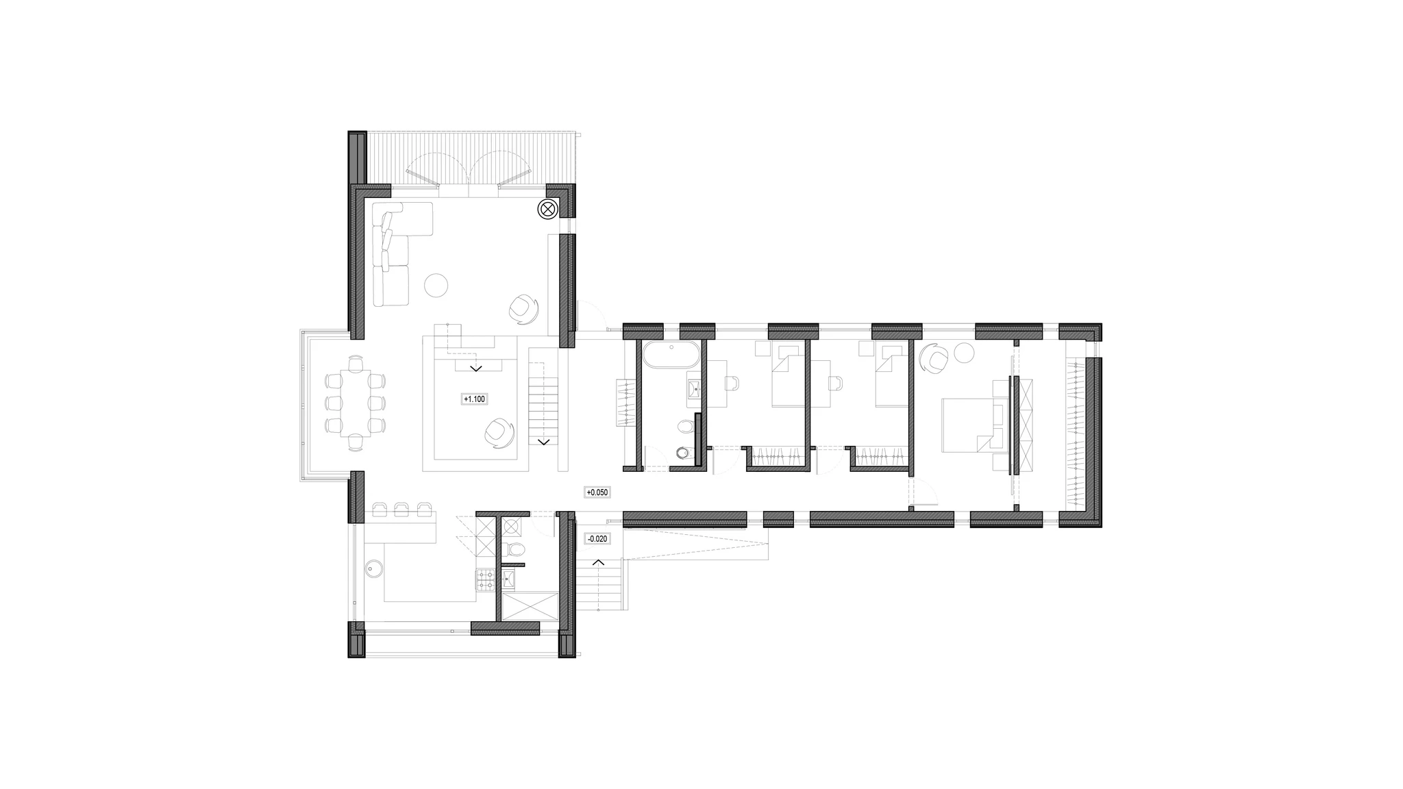
MEŽMALAS MĀJA
MEŽMALAS MĀJA
...Kas tas bija par jaukumu gulēt ārā mežā un klausīties, kā cits pēc cita pamodās putni...
Laura Fītinghofa "Aizmeža bārenīši"
Privātmājas jaunbūve Garkalnē
2018. |
N.Saulespurēna, K.Prancāne
|
foto: S.Strode
Latviešu
English