​KLUSĀ MĀJA

Uz zelta nestuvēm aiz ievu krūma
auž zilā naktī lakstīgala rītu
un neredzama roka loga rūtī
velk svītras kā ar ugunssārtu krītu

Fricis Bārda “Rīts”
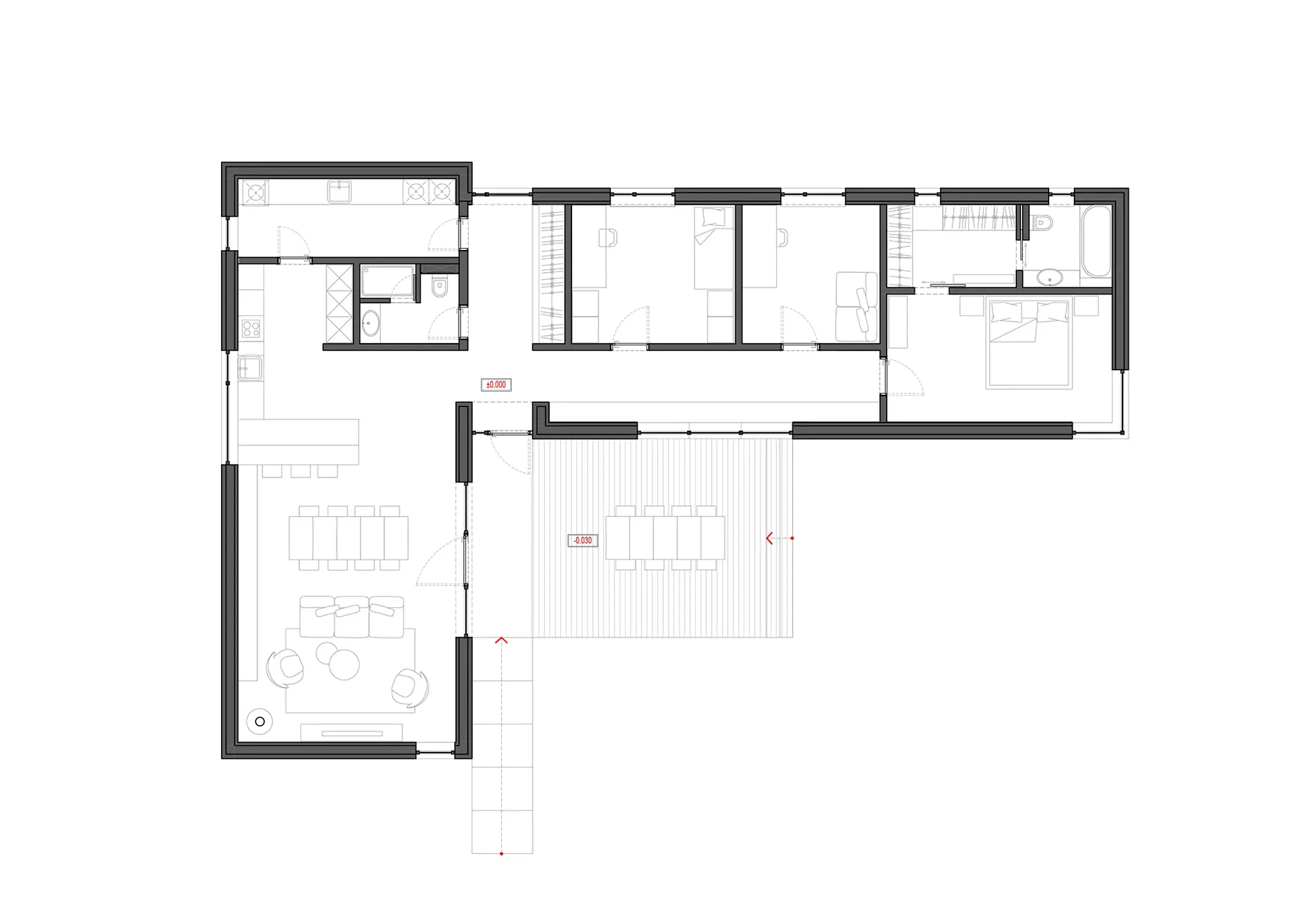
Privātmājas jaunbūve Ogrē
2020. gads | N.Saulespurēna, S.Strode | Būvdarbi - Domus eco sia http://domuseco.lv | foto: S.Seržante